
VALAKIA
75-160 m2
2-5 makuuhuonetta
Yhdeksän valmista pohjavaihtoehtoa
Muunneltavissa
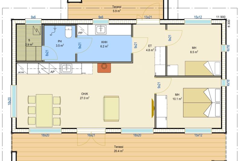
VALAKIA on yhdeksän eri kokoisen muovittoman, ekologisen ja energiatehokkaan omakotitalon kokonaisuus.
75- 160 m² mallistosta löytyy 2-5 makuuhuoneen koteja, toimivilla ja nykyaikaisilla pohjaratkaisuilla. VALAKIA soveltuu omakotitaloksi tai vapaa-ajan asunnoksi, niin kaupunkiin kuin maalle.
Haluatko lisätietoja VALAKIA-mallistosta?
Ratkaise rakennusprojektisi ThermiaTalot -asiantuntijoiden kanssa juuri sinun budjettiisi ja tarpeisiisi sopivasti.
Käydään yhdessä läpi rakennushankkeen eri toimitusvaihtoehtoja sekä kustannuksia.
Jätä meille yhteydenottopyyntö ja olemme sinuun yhteydessä mahdollisimman pian.
Isojen asioiden äärellä, katse tulevaisuudessa.
































