
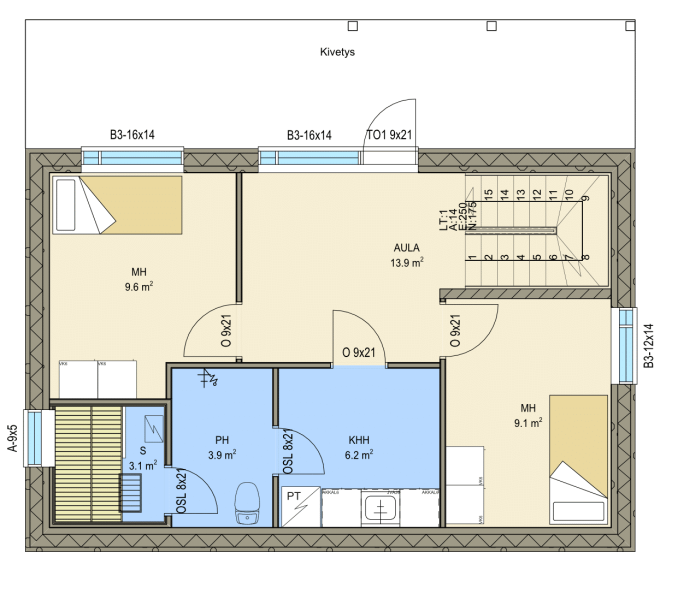
RINTELÄ
115 – 212 m2
3-4 makuuhuonetta
Neljä valmista pohjavaihtoehtoa
Muunneltavissa
RINTELÄ-mallit on nimensä mukaisesti suunniteltu rinnetonteille, joissa on mukavasti tilaa ja neliöitä kahdessa kerroksessa.
Thermiahirsi yläkerrassa yhdistettynä alakerran betonirakenteisiin tarjoaa energiatehokkaan ja nykyaikaisen rakentamisen edut. Jokaisessa mallissa on yläkerrassa terassi ja alakerrassa sauna- ja pesutilat sekä kodinhoitohuone.
Haluatko lisätietoja RINTELÄ-mallistosta?
Ratkaise rakennusprojektisi ThermiaTalot -asiantuntijoiden kanssa juuri sinun budjettiisi ja tarpeisiisi sopivasti.
Käydään yhdessä läpi rakennushankkeen eri toimitusvaihtoehtoja sekä kustannuksia.
Jätä meille yhteydenottopyyntö ja olemme sinuun yhteydessä mahdollisimman pian.
Isojen asioiden äärellä, katse tulevaisuudessa.



















