
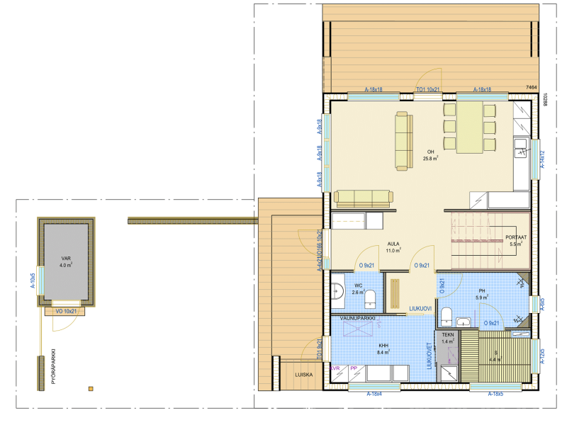
POUTA
117 – 184 m2
3-5 makuuhuonetta
Viisi valmista pohjavaihtoehtoa
Muunneltavissa
POUTA on kaksikerroksinen arkkitehtuurisesti moderni ja monimuotoinen mallisto. Julkisivun särmikkyys on klassisen kaunista ja mallisto sulautuu ympäristöön loistavasti. Pohjaratkaisut ovat selkeitä ja toimivia, sekä muunneltavissa tarpeiden mukaan.
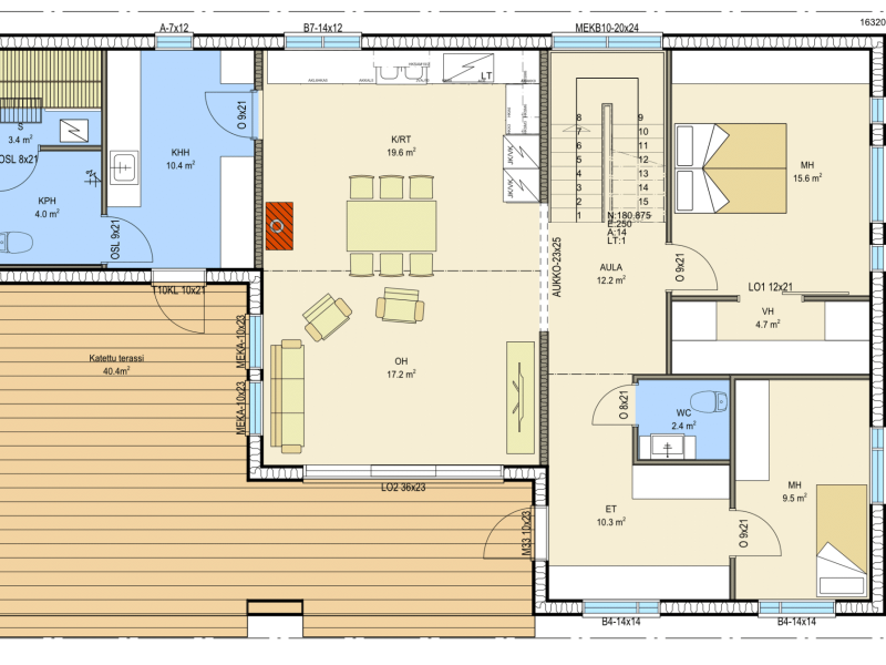
POUTA184 mallin toinen alakerran makuuhuone muuntuu hyvin työhuoneeksi.
Haluatko lisätietoja POUTA-mallistosta?
Ratkaise rakennusprojektisi ThermiaTalot -asiantuntijoiden kanssa juuri sinun budjettiisi ja tarpeisiisi sopivasti.
Käydään yhdessä läpi rakennushankkeen eri toimitusvaihtoehtoja sekä kustannuksia.
Jätä meille yhteydenottopyyntö ja olemme sinuun yhteydessä mahdollisimman pian.
Isojen asioiden äärellä, katse tulevaisuudessa.



















