
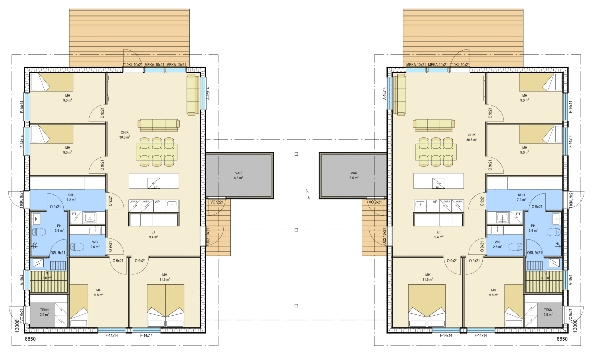
Paritalo TOIVE
TOIVE on moderni tilaihme ja erinomainen vaihtoehto pienelle ja kapeallekin kaupunkitontille. Neliöt on tarkasti ja tehokkaasti käytetty, malleissa on kaksi-neljä makuuhuonetta ja ne soveltuvat niin omakotitaloiksi kuin vapaa-ajanasunnoiksi.
Haluatko lisätietoja paritalo TOIVE-mallistosta?
Ratkaise rakennusprojektisi ThermiaTalot -asiantuntijoiden kanssa juuri sinun budjettiisi ja tarpeisiisi sopivasti.
Käydään yhdessä läpi rakennushankkeen eri toimitusvaihtoehtoja sekä kustannuksia.
Jätä meille yhteydenottopyyntö ja olemme sinuun yhteydessä mahdollisimman pian.
Isojen asioiden äärellä, katse tulevaisuudessa.









