
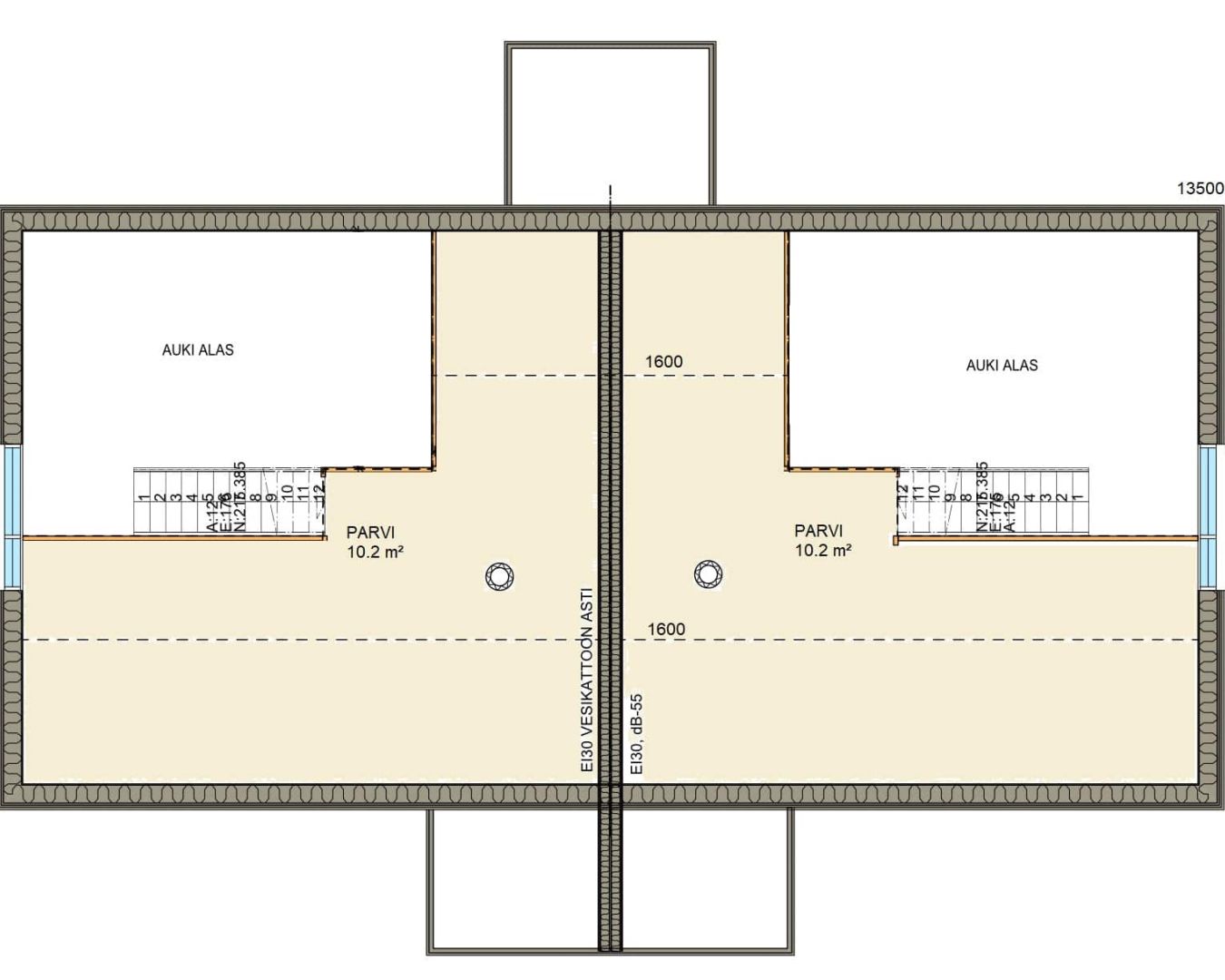
Paritalo HOSSA
2 valmista mallia.
Muunneltavissa.
Vapaa-ajan vuokrakäyttöön optimoitu mallisto, jossa petipaikkoja jopa 20 hengelle/talo.
Toimiva ja selkeä pohjaratkaisu antaa lomailuun mukavuutta ja viihtyisyyttä isollakin porukalla.
Haluatko lisätietoja paritalo HOSSA-mallistosta?
Ratkaise rakennusprojektisi ThermiaTalot -asiantuntijoiden kanssa juuri sinun budjettiisi ja tarpeisiisi sopivasti.
Käydään yhdessä läpi rakennushankkeen eri toimitusvaihtoehtoja sekä kustannuksia.
Jätä meille yhteydenottopyyntö ja olemme sinuun yhteydessä mahdollisimman pian.
Isojen asioiden äärellä, katse tulevaisuudessa.
















