
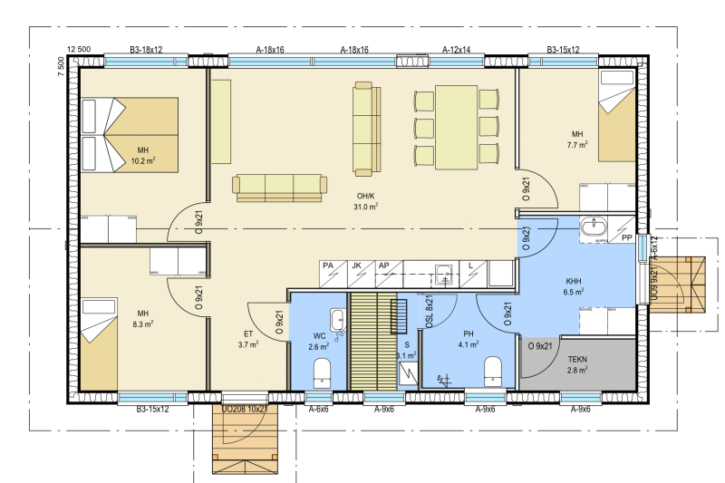
ONNI
84 – 111 m2
2-3 makuuhuonetta
Neljä valmista pohjavaihtoehtoa
Muunneltavissa
ONNI on kompakti talomallisto, jonka etuna ovat todella tehokkaat neliöt ja julkisivu on klassinen ja selkeä.
ONNI tarjoaa loistavat puitteet asumiselle ja erittäin käytännölliset ratkaisut kaikkiin toimintoihin. Kahden ja kolmen makuuhuoneen mallit soveltuvat niin pienelle perheelle kuin kahdestaan asujallekin.
Haluatko lisätietoja ONNI-mallistosta?
Ratkaise rakennusprojektisi ThermiaTalot -asiantuntijoiden kanssa juuri sinun budjettiisi ja tarpeisiisi sopivasti.
Käydään yhdessä läpi rakennushankkeen eri toimitusvaihtoehtoja sekä kustannuksia.
Jätä meille yhteydenottopyyntö ja olemme sinuun yhteydessä mahdollisimman pian.
Isojen asioiden äärellä, katse tulevaisuudessa.













