
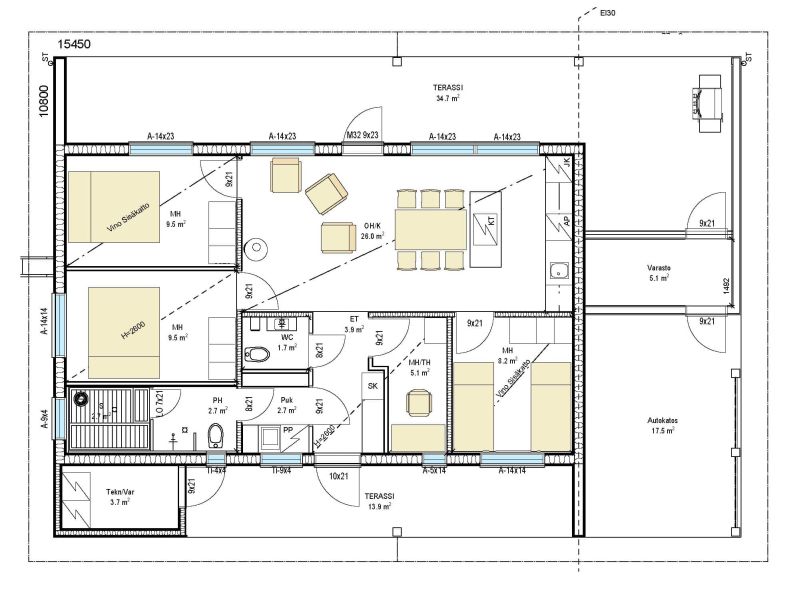
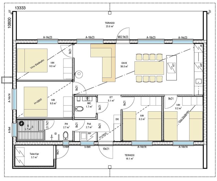
MARIKKO
90 – 100 m²
3-4 makuuhuonetta
Kaksi valmista pohjavaihtoehtoa
Muunneltavissa
MARIKKO on mallisto, jossa yhdistyvät nerokas pohjasuunnittelu ja moderni tyyli.
Malliston ominaispiirteenä on suurempaakin suuremmat ikkunat keittiö-ruokailu-olohuonetilassa, josta voit ihailla niin tuntureita kuin järvimaisemaa.
Kaikki mallimme ovat helposti muokattavissa toiveiden mukaisiksi.
Katso myös Paritalo MARIKKO
Haluatko lisätietoja MARIKKO-mallistosta?
Ratkaise rakennusprojektisi ThermiaTalot -asiantuntijoiden kanssa juuri sinun budjettiisi ja tarpeisiisi sopivasti.
Käydään yhdessä läpi rakennushankkeen eri toimitusvaihtoehtoja sekä kustannuksia.
Jätä meille yhteydenottopyyntö ja olemme sinuun yhteydessä mahdollisimman pian.
Isojen asioiden äärellä, katse tulevaisuudessa.



















