
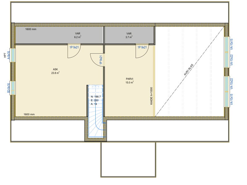
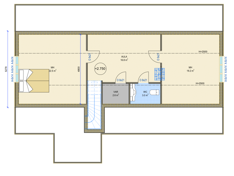
MÄNTYLÄ
160 – 209 m2
3-5 makuuhuonetta
Neljä valmista pohjavaihtoehtoa
Muunneltavissa
MÄNTYLÄ huokuu perinteitä kodikkaassa olomuodossaan sekä tarjoaa loistavat ratkaisut oleskelulle ja arjen toiminnoille. Mallisto soveltuu isommallekki perheelle, eikä tilasta tule pulaa.
MÄNTYLÄ189-mallissa olohuoneen ja ruokailutilan ylös asti avautuva korkea tila tuo avaruutta, joka on mahdollista toteuttaa myös muihin malleihin. Kaikkia mallejamme on mahdollista muokata sopivaksi niin tontin muodot kuin ilmansuunnat huomioiden.
Haluatko lisätietoja MÄNTYLÄ-mallistosta?
Ratkaise rakennusprojektisi ThermiaTalot -asiantuntijoiden kanssa juuri sinun budjettiisi ja tarpeisiisi sopivasti.
Käydään yhdessä läpi rakennushankkeen eri toimitusvaihtoehtoja sekä kustannuksia.
Jätä meille yhteydenottopyyntö ja olemme sinuun yhteydessä mahdollisimman pian.
Isojen asioiden äärellä, katse tulevaisuudessa.
















