
Kuusiluoma
54 – 65 m2
1 – 2 makuuhuonetta
Neljä valmista pohjavaihtoehtoa
Muunneltavissa
KUUSILUOMA on kompakti tilaihme omassa kokoluokassaan. Hukkaneliöt on karsittu minimiin tehokkaalla suunnittelulla.
Yhdistetyssä olohuonekeittiössä nautit lomailusta katsellen järveä tai suomalaista metsää. Kattomuoto on harjakatto, mutta mallisto on mahdollista toteuttaa myös pulpettikattoisena.
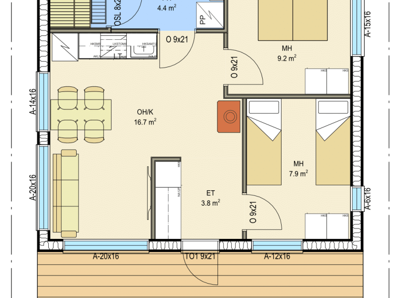
Kuusiluoma54
2 mh
- Kerrosala54 m2
- Huoneistoala46 m2
Hinta alkaen 43 170 €
Kuusiluoma56
1 mh + parvi
- Kerrosala56 m2
- Huoneistoala48 m2
Hinta alkaen 50 190 €
Kuusiluoma57
2 mh
- Kerrosala57 m2
- Huoneistoala48 m2
Hinta alkaen 47 870 €
Toimituslaajuudet
RUNKO JA JULKISIVUT
ThermiaHirsi 290×225 U-arvo 0.17
Hirsikehikon kiinnitys- ja tiivistystarvikkeet, talotiiviste
Aukkojen karat ja kiinnitystarvikkeet
Kantavat pilarit, palkit ja säätöjalat
Ikkunoiden ja ovien verhouslaudat
Nurkkalaudat
Ristikon kannat 1 ja 2 krs:
hirsipaneeli, tuulensuojakangas
Ristikon kannat 1,5 krs:
hirsipaneeli, koolaus, tuulensuojalevy 25 mm, Hunton-puukuitueriste 200 mm, höyrynsulkukangas, hirsipaneeli
Päätykolmiot 1,5 krs:
hirsipaneeli, koolaus, tuulensuojalevy 25 mm, runko, Hunton-puukuitueriste 200 mm, höyrynsulkukangas, hirsipaneeli
VÄLIPOHJA 1,5 ja 2 krs
välipohjarunko ja kantavat rakenteet
Alaslaskukoolaus (sauna/ph)
YLÄPOHJA
Kantava yläpohjarakenne: NR-kattoristikot, nurjahdus- ja sidelaudat
Kattokoolaus
Höyrynsulkukangas
Alaslaskukoolaus (sauna/ph)
Hunton-puukuitueriste puhallettuna 500 mm
VESIKATTO
Huovanaluslaudat
Aluskermi ja tiivissaumakate
Otsalaudat
(vaihtoehto pelti- tai tiilikate)
ULKO-OVET
Energialuokka A
IKKUNAT
Energialuokka A, pintahelat
3-lasiset avattavat tai kiinteät puualumiini-ikkunat, valkoiset
VÄLISEINÄT JA -OVET
Runko LVL tai kertopuu
Hunton-levyeriste 50 mm
Kipsilevy EK
Valkoinen laakaovi
Saunanovi, kokolasinen, harmaa
TERASSIT
Runko kestopuu ruskea
Terassilauta kestopuu ruskea
PINTAMATERIAALIT
Mäntypaneeli STS valkovahattu (kuivat tilat)
Haapapaneeli (sauna/ph)
RUNKO JA JULKISIVUT
ThermiaHirsi 290×225 U-arvo 0.17
Hirsikehikon kiinnitys- ja tiivistystarvikkeet, talotiiviste
Aukkojen karat ja kiinnitystarvikkeet
Kantavat pilarit, palkit ja säätöjalat
Ikkunoiden ja ovien verhouslaudat
Nurkkalaudat
Ristikon kannat 1 ja 2 krs:
hirsipaneeli, tuulensuojakangas
Ristikon kannat 1,5 krs:
hirsipaneeli, koolaus, tuulensuojalevy 25 mm, Hunton-puukuitueriste 200 mm, höyrynsulkukangas, hirsipaneeli
Päätykolmiot 1,5 krs:
hirsipaneeli, koolaus, tuulensuojalevy 25 mm, runko, Hunton-puukuitueriste 200 mm, höyrynsulkukangas, hirsipaneeli
VÄLIPOHJA 1,5 ja 2 krs
välipohjarunko ja kantavat rakenteet
YLÄPOHJA
Kantava yläpohjarakenne: NR-kattoristikot, nurjahdus- ja sidelaudat
VESIKATTO
Huovanaluslaudat
Aluskermi ja tiivissaumakate
Otsalaudat
(vaihtoehto pelti- tai tiilikate)
ULKO-OVET
Energialuokka A
IKKUNAT
Energialuokka A, pintahelat
3-lasiset avattavat tai kiinteät puualumiini-ikkunat, valkoiset












