
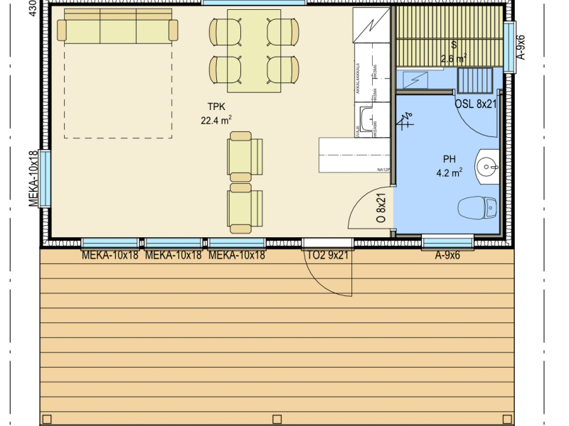
KONTIOLUOMA
34 – 80 m2
Tupa-2 makuuhuonetta
Kuusi valmista pohjavaihtoehtoa
Muunneltavissa
KONTIOLUOMAn perinteinen ulkomuoto kutsuu nauttimaan vapaa-ajasta.
Kompaktin malliston isoilla terasseilla on tilaa oleskella vaikka isommallakin porukalla. Kustannustehokas KONTIOLUOMA sopii hyvin niin päämökiksi kuin saunarakennukseksi tai lisämajoitustarpeeseen.
Haluatko lisätietoja KONTIOLUOMA-mallistosta?
Ratkaise rakennusprojektisi ThermiaTalot -asiantuntijoiden kanssa juuri sinun budjettiisi ja tarpeisiisi sopivasti.
Käydään yhdessä läpi rakennushankkeen eri toimitusvaihtoehtoja sekä kustannuksia.
Jätä meille yhteydenottopyyntö ja olemme sinuun yhteydessä mahdollisimman pian.
Isojen asioiden äärellä, katse tulevaisuudessa.



















