
KARPALO
37 – 47 m2
1-2 makuuhuonetta
Neljä valmista pohjavaihtoehtoa
Muunneltavissa
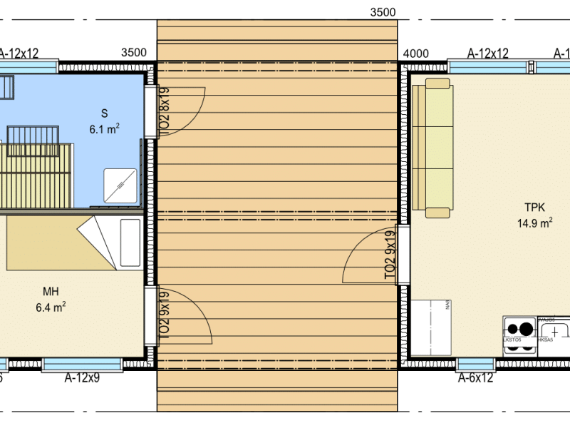
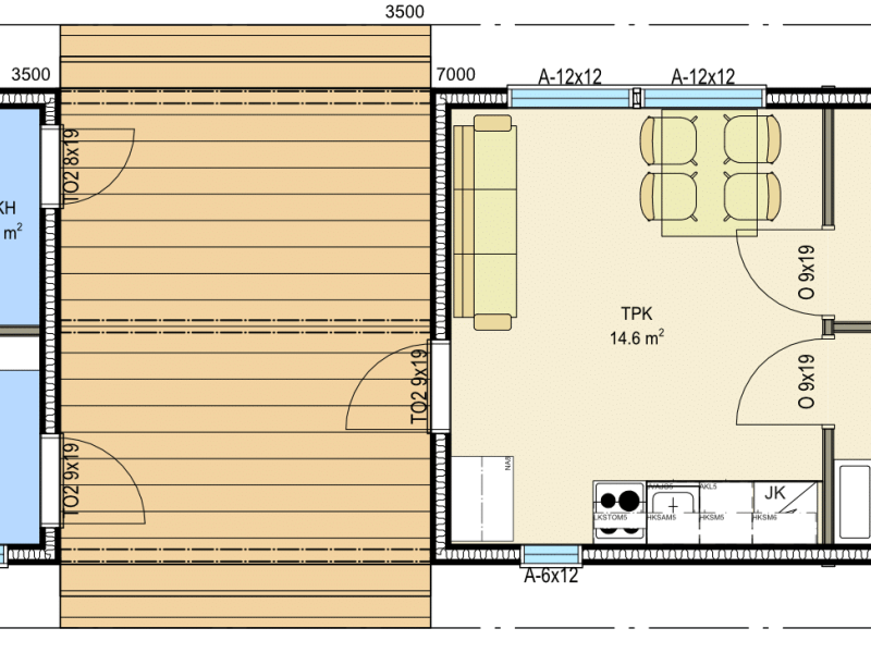
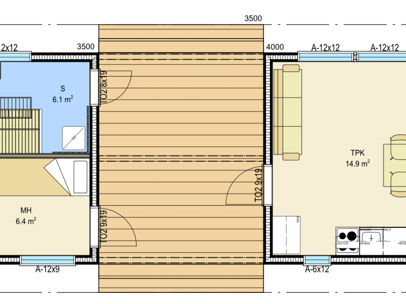
KARPALOssa on kaikki tarvittava kompaktissa paketissa.
Tupakeittiö, makuu-, ja saunatilat kahdella erillisellä puolella sekä välissä katettu terassi.
Välitilan lasittamalla saa mukavasti lisätilaa ja ympärivuotista käytettävyyttä.
A-mallit ovat pulpettikatolla ja B-mallit harjakatolla.
Fiksu ja käytännöllinen mallisto, jossa on aikaa kestävät ratkaisut.
Haluatko lisätietoja KARPALO-mallistosta?
Ratkaise rakennusprojektisi ThermiaTalot -asiantuntijoiden kanssa juuri sinun budjettiisi ja tarpeisiisi sopivasti.
Käydään yhdessä läpi rakennushankkeen eri toimitusvaihtoehtoja sekä kustannuksia.
Jätä meille yhteydenottopyyntö ja olemme sinuun yhteydessä mahdollisimman pian.
Isojen asioiden äärellä, katse tulevaisuudessa.














