
KARPALO Saunat
KARPALO on moderni saunamökkimallisto pulpetti- ja harjakattoisena.
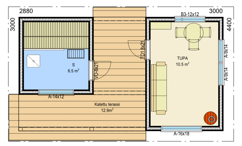
Malliston ominaisuutena saunatilat ovat erillään oleskelutiloista. Lasittamalla välikön saa käyttötilaa mukavasti lisää.
KARPALO on muokattavissa toiveiden mukaan.
Haluatko lisätietoja KARPALO-mallistosta?
Ratkaise rakennusprojektisi ThermiaTalot -asiantuntijoiden kanssa juuri sinun budjettiisi ja tarpeisiisi sopivasti.
Käydään yhdessä läpi rakennushankkeen eri toimitusvaihtoehtoja sekä kustannuksia.
Jätä meille yhteydenottopyyntö ja olemme sinuun yhteydessä mahdollisimman pian.
Isojen asioiden äärellä, katse tulevaisuudessa.











