
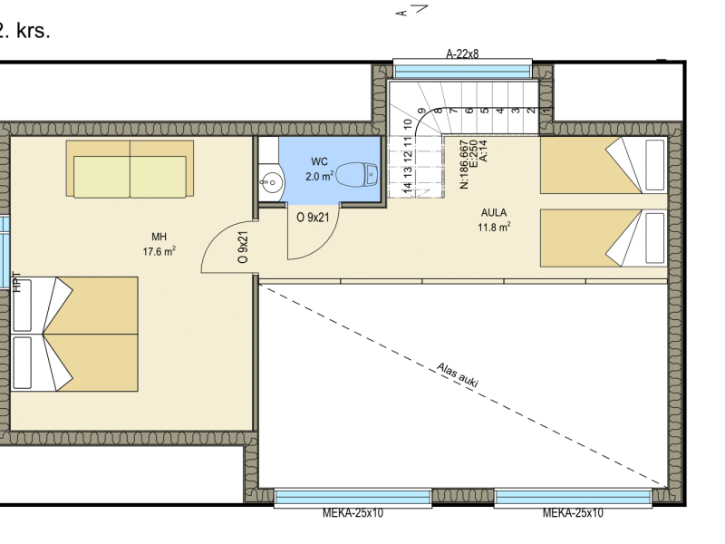
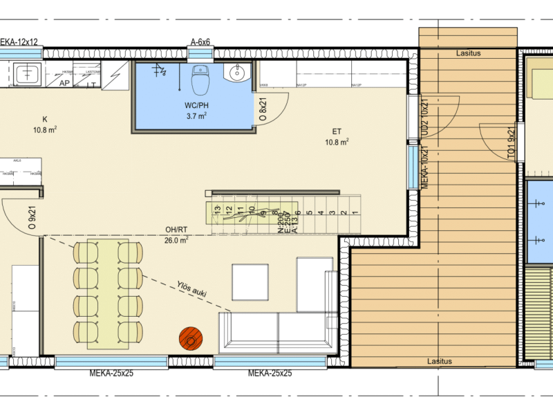
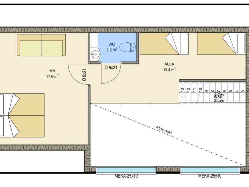
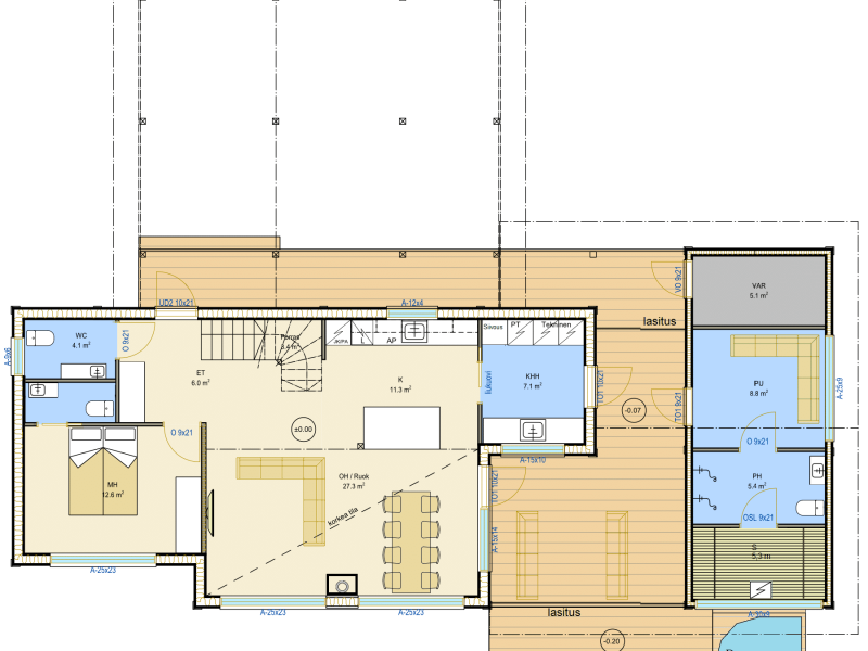
HUIPPU
136 – 174 m2
2-4 makuuhuonetta
Kolme valmista pohjavaihtoehtoa
Muunneltavissa
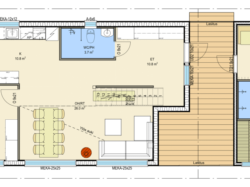
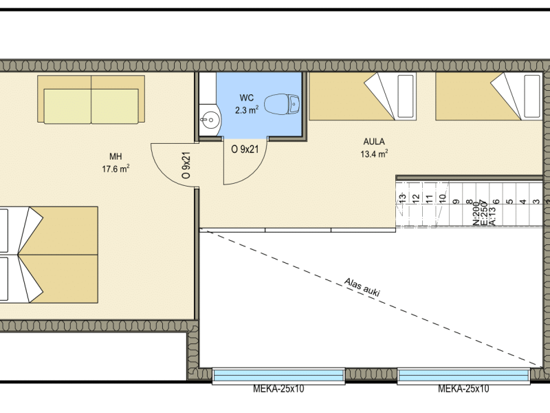
HUIPPU-malliston tilaratkaisut ovat ylellisiä.
Tunnelmallinen koti tai vapaa-ajanasunto perheelle, jossa on valoa ja avaruutta.
Suuri ja ylös asti aukeava olohuone-ruokailutila on näyttävä suurine ikkunoineen.
Ruhtinaalliset pesu-, ja saunatilat tuovat luksusta niin arkeen kuin vapaa-aikaan.
Malliston ratkaisut ovat helposti muokattavissa toiveiden mukaisiksi.
Haluatko lisätietoja HUIPPU-mallistosta?
Ratkaise rakennusprojektisi ThermiaTalot -asiantuntijoiden kanssa juuri sinun budjettiisi ja tarpeisiisi sopivasti.
Käydään yhdessä läpi rakennushankkeen eri toimitusvaihtoehtoja sekä kustannuksia.
Jätä meille yhteydenottopyyntö ja olemme sinuun yhteydessä mahdollisimman pian.
Isojen asioiden äärellä, katse tulevaisuudessa.

















