
AINOLA
100 m2
2 makuuhuonetta
Muunneltavissa
Ainola on koristeellisen perinteinen kaksikerroksinen talo mansardikatolla.
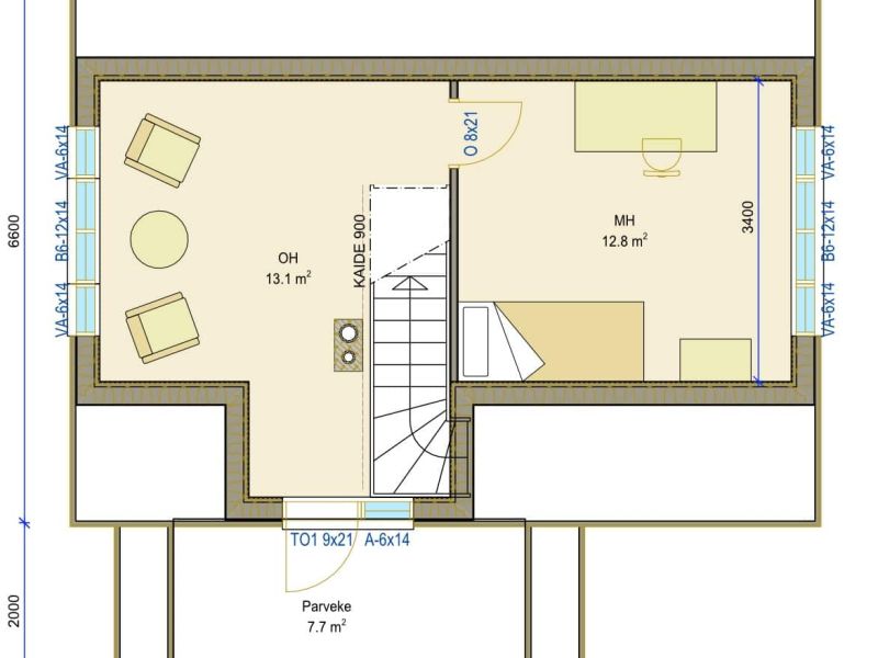
Talon esikuvana on käytetty 1900-luvun alussa suunniteltuja puuhuviloita. Yläkerta isolla oleskelutilalla, makuuhuoneella sekä omalla parvekkeella. Talo on muokattavissa yksilöllisesti.
Haluatko lisätietoja AINOLA-mallistosta?
Ratkaise rakennusprojektisi ThermiaTalot -asiantuntijoiden kanssa juuri sinun budjettiisi ja tarpeisiisi sopivasti.
Käydään yhdessä läpi rakennushankkeen eri toimitusvaihtoehtoja sekä kustannuksia.
Jätä meille yhteydenottopyyntö ja olemme sinuun yhteydessä mahdollisimman pian.
Isojen asioiden äärellä, katse tulevaisuudessa.




