
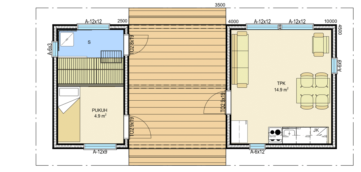
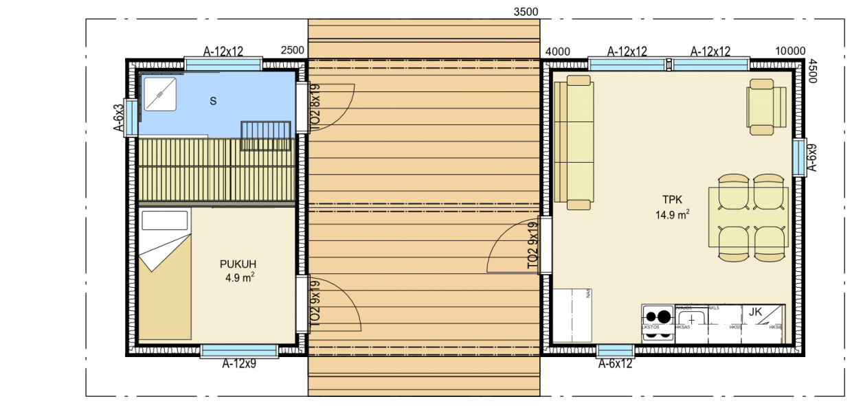
30 m2
Eri kokoisia 30 m2 malleja
Ratkaise rakennusprojektisi ThermiaTalot -asiantuntijoiden kanssa juuri sinun budjettiisi ja tarpeisiisi sopivasti.
Käydään yhdessä läpi rakennushankkeen eri toimitusvaihtoehtoja sekä kustannuksia.
Haluatko lisätietoja 30-mallistosta?
Ratkaise rakennusprojektisi ThermiaTalot -asiantuntijoiden kanssa juuri sinun budjettiisi ja tarpeisiisi sopivasti.
Käydään yhdessä läpi rakennushankkeen eri toimitusvaihtoehtoja sekä kustannuksia.
Jätä meille yhteydenottopyyntö ja olemme sinuun yhteydessä mahdollisimman pian.
Isojen asioiden äärellä, katse tulevaisuudessa.






















